EATON PARK MAI CHÍ THỌ – GAMUDA LAND CẬP NHẬT THÔNG TIN MỚI NHẤT GIÁ BÁN, CHÍNH SÁCH BÁN HÀNG
Eaton Park Được phát triển bởi tập đoàn bất động sản quốc tế Gamuda Land, Eaton Park là một dự án căn hộ cao cấp và phức hợp thương mại đầy ấn tượng, tọa lạc tại mặt tiền đường Mai Chí Thọ, phường An Phú, thành phố Thủ Đức (quận 2 cũ), TP. Hồ Chí Minh. Với vị trí đắc địa này, Eaton Park không chỉ kết nối thuận tiện đến trung tâm thành phố và các khu vực lân cận mà còn được bao quanh bởi các tiện ích ngoại khu sẵn có.

THÔNG TIN DỰ ÁN EATON PARK MAI CHÍ THỌ BY GAMUDA LAND
Tổng quan dự án Eaton Park Gamuda Land
Tên dự án : EATON PARK
Đầu tư & phát triển dự án : Gamuda Land
Tổng diện tích dự án là 3,76 ha với mật độ xây dựng khối tháp chỉ khoảng 20,74%, gồm 6 toà tháp cao từ 29-39 tầng
Dự án bao gồm 6 tòa tháp căn hộ cao từ 29 đến 39 tầng, cung cấp gần 2.000 sản phẩm đa dạng:
1PN: 621 căn : 50.7 – 59.5 m2 2PN: 1168 căn : 74 – 80 m2 3PN: 169 căn : 103.7 m2
Duplex: 8 căn : 113,8 m2 Penthouse: 12 căn : 207.5 – 254.8 m2
hophouse: 20 căn : 79.2 – 164.1 m2 Shop lots: 52 căn : 43.2 – 406.2 m2
Eaton Park được chia làm 2 phân khu chính, gồm khu 1 với 4 tháp và khu 2 với 2 tháp.
Quý Anh Chị cần thông tin sản phẩm, tham quan thực tế dự án liên hệ Ms Thuỷ PKD EATON PARK 0978.261.739 ( Call/Zalo )

VỊ TRÍ DỰ ÁN EATON PARK GAMUDA LAND
Dự án Eaton Park tọa lạc tại mặt tiền đường Mai Chí Thọ, phường An Phú, TP. Thủ Đức, TP. Hồ Chí Minh. Vị trí này được đánh giá là đắc địa, nằm ngay cửa ngõ phía Đông của thành phố, kết nối thuận tiện đến các khu vực trung tâm và các tiện ích quan trọng.
Nằm giữa ba tuyến đường lớn nhất TP Thủ Đức là Mai Chí Thọ, xa lộ Hà Nội và cao tốc TP.HCM – Long Thành – Dầu Giây, và cách nút giao An Phú vỏn vẹn 450m, nhờ đó di chuyển đến trung tâm thành phố và các tỉnh Đông Nam Bộ nhanh chóng.

TIỆN ÍCH NỘI KHU DỰ ÁN EATON PARK GAMUDA LAND
Một số tiện ích nổi bật tại Eaton Park:
Tiện ích giải trí, thư giãn:
Hồ bơi vô cực và hồ bơi resort: Cung cấp không gian bơi lội và thư giãn đẳng cấp, với thiết kế độc đáo tạo cảm giác vô tận.
Hồ bơi trẻ em và công viên nước: Thiết kế riêng biệt và an toàn cho trẻ nhỏ thỏa sức vui đùa.
Công viên bờ sông và đường chạy bộ, đạp xe: Cung cấp không gian xanh mát, trong lành để cư dân rèn luyện sức khỏe và tận hưởng thiên nhiên.
Vườn dã ngoại và khu vực BBQ ngoài trời: Là nơi lý tưởng để tổ chức các buổi tiệc nướng, sum họp gia đình và bạn bè.
Phòng tập gym hiện đại, phòng yoga và spa: Trang bị đầy đủ máy móc và không gian thư giãn để cư dân chăm sóc sức khỏe và sắc đẹp.
Bể Jacuzzi, phòng xông hơi và thủy trị liệu: Giúp cư dân thư giãn, giảm căng thẳng sau một ngày làm việc mệt mỏi.
Phòng chiếu phim, phòng karaoke, cigar lounge: Các khu vực giải trí cao cấp, phục vụ sở thích đa dạng của cư dân.
Tiện ích dành cho cộng đồng:
Công viên thú cưng: Một trong những tiện ích độc đáo, lần đầu tiên xuất hiện trên thị trường, dành riêng cho các cư dân yêu động vật.
Khu vui chơi trẻ em trong nhà và ngoài trời: Thiết kế sáng tạo, an toàn, giúp trẻ phát triển cả về thể chất và trí tuệ.
Sân thể thao đa năng, sân tennis, sân tập golf mini: Phục vụ nhu cầu thể thao, rèn luyện sức khỏe của cư dân.
Không gian làm việc chung (Co-working space) và thư viện: Đáp ứng nhu cầu làm việc, học tập và kết nối cộng đồng.
Studio sáng tạo: Bao gồm phòng thu cách âm, phòng livestream chuyên dụng, phục vụ cho những cư dân làm công việc sáng tạo nội dung.
Tiện ích thương mại:
Hệ thống shophouse, shop lot và cửa hàng tiện lợi: Đáp ứng nhu cầu mua sắm, ẩm thực ngay trong nội khu dự án.
Nhà hàng và khu ẩm thực: Mang đến nhiều lựa chọn ẩm thực phong phú cho cư dân.
Với hơn 100 tiện ích cao cấp và đa dạng, Eaton Park không chỉ là nơi an cư lý tưởng mà còn là một không gian sống trọn vẹn, nơi mọi nhu cầu của cư dân đều được đáp ứng một cách tốt nhất.


Tiện ích ngoại khu EATON TON GAMUDA LAND

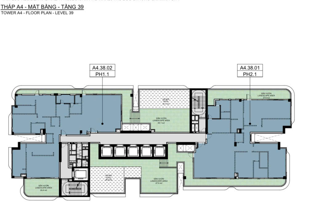
MẶT BẰNG DỰ ÁN EATON PARK GAMUDA LAND

Mặt bằng tổng thể dự án Eaton Park được quy hoạch trên khu đất rộng 3,76 ha, với mật độ xây dựng khối tháp thấp, chỉ khoảng 20,74%, dành phần lớn diện tích cho không gian xanh và tiện ích. Dự án gồm 6 tòa tháp căn hộ cao từ 29 đến 39 tầng, được chia làm 2 phân khu:
Phân khu 1: Gồm 4 tòa tháp (A1, A2, A3, A4) với tổng số 1.307 căn hộ.
Phân khu 2: Gồm 2 tòa tháp (A5, A6) với tổng số 673 căn hộ.
Thiết kế tầng điển hình: Mặt bằng các tòa tháp được thiết kế tối ưu hóa diện tích và công năng sử dụng. Mỗi tầng có mật độ căn hộ thấp, trung bình chỉ khoảng 9-13 căn/sàn, đảm bảo sự riêng tư và thông thoáng cho cư dân. Các căn hộ có nhiều mặt thoáng, tận dụng tối đa ánh sáng tự nhiên và gió trời, mang lại không gian sống trong lành.
Các loại hình căn hộ: Dự án Eaton Park cung cấp đa dạng các loại hình căn hộ, từ 1 đến 3 phòng ngủ, cùng với các căn duplex, penthouse và shophouse khối đế, đáp ứng nhu cầu đa dạng của khách hàng:
Căn hộ 1 phòng ngủ: Diện tích khoảng 45 – 54 m2.
Căn hộ 2 phòng ngủ: Diện tích khoảng 65 – 72 m2.
Căn hộ 3 phòng ngủ: Diện tích khoảng 93 – 95 m2.
Penthouse: Các căn penthouse siêu sang, có diện tích lớn, thiết kế độc đáo và hồ bơi riêng.
Đặc điểm nổi bật trong thiết kế mặt bằng:
Hành lang rộng: Hành lang được thiết kế rộng rãi, đảm bảo việc di chuyển dễ dàng và an toàn.
Tầng hầm thông nhau: Các tòa tháp có 2 tầng hầm thông nhau, tạo không gian đỗ xe rộng lớn và thuận tiện.
Thang máy tốc độ cao: Mỗi tòa tháp được trang bị nhiều thang máy, bao gồm cả thang máy riêng cho cư dân và thang vận chuyển hàng hóa, đảm bảo di chuyển nhanh chóng, riêng tư.
Shophouse và tiện ích khối đế: Tầng 1 và 2 của các tòa tháp là khu vực shophouse thương mại, tiện ích, tạo nên một “thương phố” sôi động ngay dưới chân các tòa nhà.
Với mặt bằng được thiết kế khoa học và tinh tế, Eaton Park mang đến một không gian sống không chỉ sang trọng mà còn tiện nghi, thoải mái, đáp ứng mọi tiêu chuẩn sống khắt khe của cư dân hiện đại.
Mặt bằng điển hình tháng A4 LAGOON




Mặt bằng điển hình tháp A3 COVE




Mặt bằng Layout căn hộ tại EATON PARK

Giá bán và chính sách bán hàng dự án EATON PARK GAMUDA LAND
Hình ảnh tiến độ dự án Eaton Park Gamudaland














